UK Council House Plans: Your Guide

V.Sislam 92 views
UK Council House Plans: Your Guide

UK Council House Plans: Your Guide

Alright guys, let’s talk about getting house plans from the council here in the UK. So, you’re thinking about building, renovating, or maybe you’re just super curious about the history of a property? Whatever your reason, you might find yourself needing to access official house plans. And guess what? The council is often the place to go for this kind of information. But how exactly do you go about it? It’s not always as straightforward as just walking in and asking, so stick with me, and we’ll break down the process, what you can expect, and why these plans are so darn important. We’re going to dive deep into the nitty-gritty, ensuring you’re armed with all the knowledge you need to navigate this system like a pro. It might seem a bit daunting at first, but with the right approach, you’ll be sifting through architectural drawings in no time. So, grab a cuppa, get comfy, and let’s get started on this journey to unlocking those council house plans!

Why Would You Need Council House Plans?

So, you’re probably wondering, “Why on earth would I need to get my hands on council house plans?” That’s a fair question, and the reasons can be pretty varied, guys. One of the most common scenarios is if you’re planning a major renovation or extension to your existing home. You’ll need to see the original plans to understand the existing structure, identify load-bearing walls, and figure out how your proposed changes will fit in. It’s all about ensuring your plans are structurally sound and, crucially, comply with building regulations . The council will want to see these original plans to compare them with your new proposals, making sure you’re not doing anything that compromises the building’s integrity or safety. Another big one is if you’re buying a property , especially an older one. Having access to the original plans can reveal a lot about the property’s history, any previous alterations, and even potential issues that might not be obvious during a standard survey. Think of it as getting the property’s autobiography! It can also be super helpful if you’re involved in a boundary dispute with a neighbour. Original plans often detail property lines and may have been used for previous planning applications, offering valuable evidence. For those of you interested in historical research or simply appreciating the architecture of your local area, council archives can be a treasure trove. You might uncover details about the original design, materials used, and even the architect responsible. And let’s not forget the legal and financial aspects . Sometimes, lenders or legal professionals might require these plans as part of due diligence for a property transaction or a complex building project. It provides a clear, official record. So, as you can see, the need for these plans stretches far beyond just a simple curiosity; they are often a crucial component in managing, modifying, or understanding a property’s lifecycle. The more information you have, the better decisions you can make, and the council holds a significant part of that documentation.

The Council’s Role in House Plans

Now, let’s chat about the council’s role in all of this. Essentially, local authorities in the UK are the custodians of a vast amount of information related to properties within their jurisdiction. This includes planning applications, building control records, and historical archives . When a property was built, extended, or significantly altered, planning permission or building regulations approval would likely have been sought from the local council. As part of these applications, detailed architectural drawings, site plans, and structural details were submitted. These documents are then retained by the council, forming an invaluable historical record. The planning department is usually the first port of call for historical planning documents, while the building control department holds records related to the structural safety and compliance of buildings. Think of them as the official record-keepers for all things construction and development within your local area. Their role is to ensure that new developments and alterations meet the required standards for safety, accessibility, and environmental impact. Therefore, the plans they hold aren’t just random drawings; they are official documents that have been vetted and approved, demonstrating compliance with the relevant regulations at the time of submission. This makes them incredibly reliable sources of information. In some cases, councils also maintain local land charges registers , which can provide further information about the property’s history and any restrictions. It’s a complex system, but it’s designed to provide a framework for responsible development and to maintain a comprehensive understanding of the built environment. So, when you approach the council, you’re tapping into this official, regulated system of documentation that underpins property development and ownership in the UK. They have a legal obligation to keep these records, though the ease of access can vary, which we’ll get into next.

How to Access House Plans from the Council

Okay, so you’re convinced you need these plans, but how do you actually get them? This is where things can get a bit tricky, guys, as the process isn’t always uniform across all councils in the UK. However, there are some common steps and approaches you can take. First things first: identify the correct council. This sounds obvious, but if you’re dealing with a property that’s on the border of different local authority areas, make sure you’re contacting the right one. You can usually find this information on the government’s website by entering the property’s postcode. Next, determine which department you need. Generally, you’ll be looking for either the Planning Department (for historical planning permissions and associated drawings) or the Building Control Department (for records relating to structural compliance and building regulations). Often, there’s a dedicated archives or information team that can guide you. Contact them directly. Don’t just rely on a general enquiries email. Try to find the specific contact details for the relevant department. A phone call can often be more effective than an email for getting initial advice. Explain clearly why you need the plans. Are you planning an extension? Researching history? Involved in a dispute? The more context you give, the better they can assist you. Submit a formal request. Most councils will have a specific form or procedure for requesting historical documents. This might be called a ‘Landowner Enquiry’, a ‘Freedom of Information Request’ (though this is more for general information, not specific property plans unless they’ve been made public), or a ‘Building Regulation History Request’. Be prepared for fees. Accessing these plans is rarely free. Councils have to store and retrieve these documents, and they will often charge a fee for this service. The cost can vary significantly, from a small administrative charge to a more substantial fee for extensive searches. Be patient. This is crucial, guys. Councils are often understaffed and dealing with a high volume of requests. It can take weeks, or sometimes even months, to retrieve and process your request. Don’t expect an instant turnaround. Check online portals. Some forward-thinking councils have started digitizing their records and making them available through online portals. It’s worth checking the council’s website first to see if this is an option. You might find a searchable database of planning applications and even downloadable drawings. If all else fails, or if the council’s records are incomplete, you might need to consider hiring a professional architect or surveyor . They may have access to other databases or be able to help you reconstruct plans based on the existing property. Remember, the key is persistence and clarity in your communication. Don’t get discouraged if your first attempt doesn’t yield immediate results!

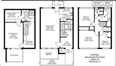
What Information Can You Expect to Find?

So, what goodies can you expect to unearth when you finally get your hands on these council house plans? Well, it really depends on the age of the property and the complexity of the original application, but generally, you’re looking at a treasure trove of information that can be incredibly useful. The most fundamental thing you’ll find are the architectural drawings. These typically include:

  • Floor Plans: These are the bird’s-eye views of each level of the house, showing the layout of rooms, walls, doors, and windows. You’ll see the original configuration of the property, which is gold if you’re planning renovations. They often come in different scales, so pay attention to the measurements.
  • Elevations: These drawings show the exterior of the building from different viewpoints (front, back, sides). They’re crucial for understanding the building’s overall appearance, rooflines, window styles, and any external features.
  • Site Plans/Block Plans: These illustrate the property in relation to its plot of land, showing boundaries, outbuildings, driveways, and the general site layout. Super helpful for understanding boundaries and landscaping.
  • Sections: These are like cutting through the building to show the internal construction, wall structures, floor depths, and roof construction. They provide a detailed look at how the building is put together.

Beyond the drawings, you might also find supporting documents submitted with the planning or building control application. These can include:

  • Design and Access Statements: For more recent applications, these explain the design principles and how the proposal responds to the site and its context.
  • Structural Calculations: For building control applications, these detailed calculations demonstrate the structural integrity of the building or proposed works.
  • Material Specifications: Information about the types of bricks, roof tiles, insulation, and other materials used.
  • Drainage and Utility Plans: Details on how waste is managed and how services like water and electricity are connected.
  • Correspondence: Sometimes, you might find letters or notes between the applicant and the council, which can offer insights into negotiations or specific decisions made.

For older properties, the plans might be hand-drawn and less detailed than modern CAD drawings, but they still offer invaluable historical context. For newer properties, you’ll likely find more sophisticated technical drawings. It’s important to remember that the plans you get are usually the ones that were approved at the time of application . Subsequent unapproved alterations might not be documented. Always cross-reference the plans with the actual property and any other available information. Think of these documents as the blueprints of the past, providing a tangible link to how the property was conceived and built.

Potential Challenges and What to Do

Alright guys, let’s get real. While the idea of easily accessing council house plans sounds great, there can definitely be some bumps in the road. So, what are the common challenges you might face, and how can you tackle them like a boss?

  • Incomplete or Missing Records: This is a big one. Councils have been around for a long time, and sadly, records can get lost, damaged, or were never properly filed in the first place, especially for very old properties. Sometimes, what you get might be a partial set of drawings, or perhaps only planning documents without detailed building control information.
    • What to do: Don’t despair! If the council records are incomplete, you might need to supplement them. Hire a qualified surveyor or architect to conduct a thorough survey of the property. They can often piece together information, take measurements, and create